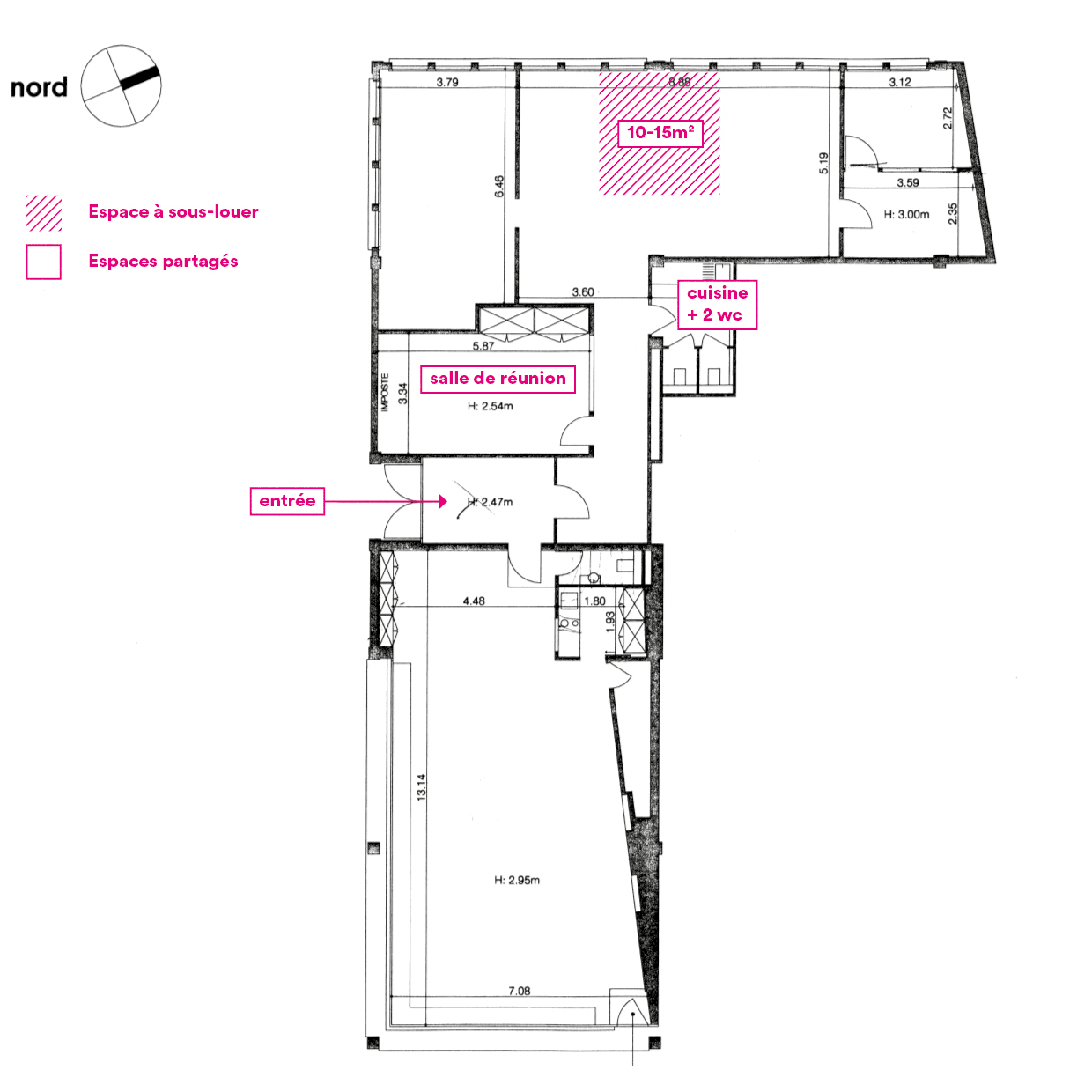
Place de travail location au sein d'un espace associatif

Situé dans le quartier St-Jean à Genève, au rez-de-chaussée, lumineux et calme, avec vue sur un parc. Surface disponible entre 10 et 15 m2, à CHF 37.-/m2.
Le loyer inclut l'accès à une salle de réunion, internet, imprimante professionnelle, ménage hebdomadaire, place de parking partagée, espace cuisine & bon café.

  • text
    Espace avec place de travail à louer
  • text
    Entrée de l'espace
  • text
    Salle de conférence, entrée dans l'espace

Espace associatif propulsé avec ˗ˋˏ ♡ ˎˊ˗ par une quinzaine de personnes évoluant principalement dans les domaines culturels et associatifs (création artistique, développement web, écriture, édition, graphisme, production film & théâtre).

Intéressé·e·x·s? Écris-nous un email.